Circa tre mesetti fa io speravo, ci contavo, ero convinta ma soprattutto ci credevo di avere casa finita per Natale...già immaginavo l'albero all'entrata, i due elfi fatti lo scorso anno ai lati del mobile, le mie lanterne e le lucine con la renna appese fuori, ma già i sogni fanno fatica a realizzarsi sarebbe forse troppo chiedere di vederli realizzati velocemente e così ho metà casa ancora da terminare.
Ebbene si, ho la cucina montata non ancora completamente collegata, la stufa in ghisa ancora imballata che sarà poi da inserire nel camino, in un angolo poi della cucina ho anche il divano ancora imballato e poi...beh ho il muro della lavanderia al grezzo e nel salotto manca ancora il pavimento...e gli operai non torneranno logicamente prima di martedì.
Non nascondo che ho avuto dei momenti di "basta mi arrendo" ma visto che arrendendomi niente cambiava ho preferito riconcentrarmi nel risultato finale, che lentamente, comincio ad intravedere.
Da due giorni poi è arrivata in casa l'influenza per completare l'opera...va beh, speriamo passi, che tornino gli operai e che sia terminata presto casa ^_^.
Vi lascio con un anticipo della mia cucina e anche con l'augurio di trascorrere con i vostri cari serenamente questo Natale nella speranza vi porti ciò che più desiderate.
domenica 25 dicembre 2016
mercoledì 14 dicembre 2016
I lavori procedono ed in teoria sono quasi terminati...
Alcune di voi sanno che sono nel pieno della ristrutturazione di casa...pavimenti, impianti: elettrico ed idraulico, muri da demolire e da "tirar su", bagni nuovi e lavanderia (parte della casa a cui tenevo davvero molto), ampliamento dell'entrata e di un lato della casa...e qualcuna mi chiede come sta andando e soprattutto come sta venendo.
Mi sento di dire che è stata un esperienza davvero tosta e particolare ma allo stesso tempo davvero stimolante e piacevole.
Non nascondo che i limiti dati dai miei problemi mi hanno decisamente rallentata e mi hanno fatto partecipare poco (manualmente) cosa che io invece avrei adorato fare...dal togliere magari le vecchie mattonelle al tinteggiare le pareti, però bellissimo passare ore a scegliere i sanitari, la vasca, girare per mobilifici a vedere cucine (anche qui con qualche limite), scegliere i pavimenti, studiare ore i progetti ed accorgermi in tempo che magari un muro andava fatto 40 cm prima in modo da poter fare una seconda cabina armadio...
In una parola, se non fosse per il disagio che logicamente crea non avere le porte, la cucina, ed anche qualche finestra vista la stagione (per fortuna amo il freddo) definirei l'esperienza stupenda.
Probabilmente tutto questo entusiasmo è dato anche dal fatto che io amo la casa, io non amo viaggiare proprio perchè devo allontanarmi dal mio nido e poi perchè essendo la casa che mio papà assieme a mia mamma ha "costruito" nel corso degli anni con soddisfazione e sicuramente anche con qualche sacrificio sono certa che da qualunque parte del cielo lui sta guardando è orgoglioso di me, anzi di tutti noi che stiamo contribuendo a rendere una sua cosa stupenda o un paradiso come ultimamente lo definiva lui.
Forse sta anche brontolando vedendo com'è ridotto il giardino, ammassi di mattoni e di sabbia, pacchi di mattonelle, il prato da rifare totalmente ecc...ma sono anche certa che il risultato gli piacerà ^_^.
Sarà una casa semplice, liscia come ho gia detto e lineare, senza esagerazioni...bianco e legno.
Ma per bianco non pensate allo shabby, in questi mesi di progetti ed idee ho un pò rivoluzionato il mio modo di essere, il mio gusto, il mio stile, non che io sia cambiata ma ho sentito la necessità di rinnovo, di "nuovo", e appunto di semplicità e di linearità, pochi fronzoli e molta essenzialità.
O sarà che a forza di leggere e vedere shabby mi è arrivato alla nausea?!? A parte gli scherzi credo che la casa ci rappresenti e se si ha modo di rinnovarla esprime anche i nostri cambiamenti.
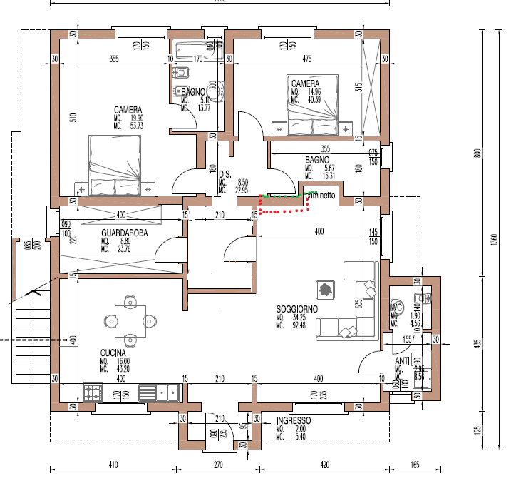
Ci sarà una piccola pre-entrata dove lasciare scarpe e cappotti per poi entrare nella zona giorno che sarà uno spazio completamente aperto.
La cucina sarà completamente bianca: ante con venature del legno, lisce senza maniglie, non avrò pensili perchè la maggior parte della cucina si sviluppa sotto una grande finestra, il top sarà bianco come il forno di vetro e il piano cottura ad induzione con una cappa che avrà anche la funzione di lampadario sopra il piano cottura...la dispensa sarà un vecchio armadio a due ante di legno.
Nel salotto ci sarà il camino fatto da mio papà squadrato bianco la parte sopra e con sopra una grande trave di legno (pensate che era una vecchia traversina dei treni che mio papà ha fatto lavorare da un falegname) ... dividerà la parte sotto che sarà aperta fino a terra e dove dentro ci sarà una grande stufa della nonna di ghisa, nel mezzo un divano ad angolo e dalla parte opposta una portafinestra che porterà direttamente al giardino.
In un angolo della zona giorno la lavanderia, con un piccolo bagno per gli ospiti.
Vicino all'angolo del camino ci sarà l'entrata alla zona notte: due piccole cabine armadio, due camere e due bagni.
Il pavimento sarà lo stesso per tutta la casa compresi i bagni e la lavanderia: gres porcellanato effetto legno...avevamo scelto un color lavanda ma poi non essendo più purtroppo in produzione abbiamo deciso il colore muschio...un pò più freddino alla vista ma sicuramente si noterà meno lo sporco ^_^.
Soffitti bianchi, pareti beige (il nome della tonalità del colore è focaccia) e parete d'entrata e dietro letto qualche tonalità più scura.
Fosse stato per me avrei scelto il bianco ma vista la mia truppa pelosa con le pareti beige lo sporco si noterà sicuramente di meno.
Sono felice di condividere con voi questo mio progetto che sta arrivando (per fortuna) al traguardo e sarò ancora più felice di farvi vedere il risultato (a cui dovremmo essere vicini) perchè sono davvero orgogliosa di aver potuto realizzare un sogno che è costato molto in ogni senso ma che per me è davvero importantissimo...il mio nido...il mio adorato nido.
Vi lascio con la piantina della casa e qualche foto dei lavori in corso sperando presto di potervi far vedere le foto del lavoro ultimato.
Un abbraccio a chi nonostante la mia latitanza continua a chiedermi come sta andando...
Mi sento di dire che è stata un esperienza davvero tosta e particolare ma allo stesso tempo davvero stimolante e piacevole.
Non nascondo che i limiti dati dai miei problemi mi hanno decisamente rallentata e mi hanno fatto partecipare poco (manualmente) cosa che io invece avrei adorato fare...dal togliere magari le vecchie mattonelle al tinteggiare le pareti, però bellissimo passare ore a scegliere i sanitari, la vasca, girare per mobilifici a vedere cucine (anche qui con qualche limite), scegliere i pavimenti, studiare ore i progetti ed accorgermi in tempo che magari un muro andava fatto 40 cm prima in modo da poter fare una seconda cabina armadio...
In una parola, se non fosse per il disagio che logicamente crea non avere le porte, la cucina, ed anche qualche finestra vista la stagione (per fortuna amo il freddo) definirei l'esperienza stupenda.
Probabilmente tutto questo entusiasmo è dato anche dal fatto che io amo la casa, io non amo viaggiare proprio perchè devo allontanarmi dal mio nido e poi perchè essendo la casa che mio papà assieme a mia mamma ha "costruito" nel corso degli anni con soddisfazione e sicuramente anche con qualche sacrificio sono certa che da qualunque parte del cielo lui sta guardando è orgoglioso di me, anzi di tutti noi che stiamo contribuendo a rendere una sua cosa stupenda o un paradiso come ultimamente lo definiva lui.
Forse sta anche brontolando vedendo com'è ridotto il giardino, ammassi di mattoni e di sabbia, pacchi di mattonelle, il prato da rifare totalmente ecc...ma sono anche certa che il risultato gli piacerà ^_^.
Sarà una casa semplice, liscia come ho gia detto e lineare, senza esagerazioni...bianco e legno.
Ma per bianco non pensate allo shabby, in questi mesi di progetti ed idee ho un pò rivoluzionato il mio modo di essere, il mio gusto, il mio stile, non che io sia cambiata ma ho sentito la necessità di rinnovo, di "nuovo", e appunto di semplicità e di linearità, pochi fronzoli e molta essenzialità.
O sarà che a forza di leggere e vedere shabby mi è arrivato alla nausea?!? A parte gli scherzi credo che la casa ci rappresenti e se si ha modo di rinnovarla esprime anche i nostri cambiamenti.
Ci sarà una piccola pre-entrata dove lasciare scarpe e cappotti per poi entrare nella zona giorno che sarà uno spazio completamente aperto.
La cucina sarà completamente bianca: ante con venature del legno, lisce senza maniglie, non avrò pensili perchè la maggior parte della cucina si sviluppa sotto una grande finestra, il top sarà bianco come il forno di vetro e il piano cottura ad induzione con una cappa che avrà anche la funzione di lampadario sopra il piano cottura...la dispensa sarà un vecchio armadio a due ante di legno.
Nel salotto ci sarà il camino fatto da mio papà squadrato bianco la parte sopra e con sopra una grande trave di legno (pensate che era una vecchia traversina dei treni che mio papà ha fatto lavorare da un falegname) ... dividerà la parte sotto che sarà aperta fino a terra e dove dentro ci sarà una grande stufa della nonna di ghisa, nel mezzo un divano ad angolo e dalla parte opposta una portafinestra che porterà direttamente al giardino.
In un angolo della zona giorno la lavanderia, con un piccolo bagno per gli ospiti.
Vicino all'angolo del camino ci sarà l'entrata alla zona notte: due piccole cabine armadio, due camere e due bagni.
Il pavimento sarà lo stesso per tutta la casa compresi i bagni e la lavanderia: gres porcellanato effetto legno...avevamo scelto un color lavanda ma poi non essendo più purtroppo in produzione abbiamo deciso il colore muschio...un pò più freddino alla vista ma sicuramente si noterà meno lo sporco ^_^.
Soffitti bianchi, pareti beige (il nome della tonalità del colore è focaccia) e parete d'entrata e dietro letto qualche tonalità più scura.
Fosse stato per me avrei scelto il bianco ma vista la mia truppa pelosa con le pareti beige lo sporco si noterà sicuramente di meno.
Sono felice di condividere con voi questo mio progetto che sta arrivando (per fortuna) al traguardo e sarò ancora più felice di farvi vedere il risultato (a cui dovremmo essere vicini) perchè sono davvero orgogliosa di aver potuto realizzare un sogno che è costato molto in ogni senso ma che per me è davvero importantissimo...il mio nido...il mio adorato nido.
Vi lascio con la piantina della casa e qualche foto dei lavori in corso sperando presto di potervi far vedere le foto del lavoro ultimato.
Un abbraccio a chi nonostante la mia latitanza continua a chiedermi come sta andando...
Iscriviti a:
Commenti (Atom)




